当前所在位置:首页>私宅改造

【唐猫 • 设计】厦门私宅改造

2016-08-17 15:34:08




私宅改造

这是位于福建厦门的一处私宅,早期两层半的格局带来的压迫性让整个空间变得拥挤不堪,各个功能区也无法连贯,屋主聘请我们为其改造,经过协商决定保留原先两层半的形式,只是通过功能区的重新调整,改造,让整个空间焕然一新。



640-54.jpeg

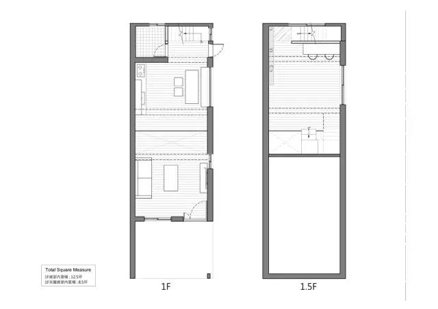
1F-1.5F平面图

640-54.jpeg

2F-3F平面图


入口处以绿色瓷砖装饰
保留了夹层设计
首层空间会比较低矮
640-28.jpeg
640-29.jpeg
640-30.jpeg
为了避免压迫感
设计首先在原先的墙面凿开
安装上透明的玻璃
来自室外的光线便可以倾洒至室内
640-31.jpeg
640-32.jpeg
白色与木质元素的搭配
让整个空间显得日式风格般的素雅洁净
640-33.jpeg
640-34.jpeg
餐桌旁的大窗用以保留最佳照明
窗框调整尺度与段差
自然形成用餐时的座椅
640-35.jpeg
640-37.jpeg
原先位于入口处的楼梯改至顶端厨房的后方
靠边的设计可以预留出更为宽敞的公共空间
也让屋主的活动更加自如
640-38.jpeg

自然的木质元素装饰
清新的绿植点缀
整个空间简约又温暖
640-39.jpeg
640-40.jpeg
640-41.jpeg
我们用部分玻璃天花板
为整个楼梯部分带来明亮的视觉效果
640-42.jpeg
640-43.jpeg
夹层处是屋主的工作室
极简的风格设计让屋主可以拥有一片宁静之地

 640-44.jpeg

640-45.jpeg

楼梯拐角处的画作

为空间带来艺术的静谧感
640-46.jpeg
二层为卧室
半开放式的设计
利用天花板材质的不同划分空间
洗浴室用大量的木质元素与绿植带来浓厚的自然气息
阳光,空气在这个空间里都可以随意的流动
640-47.jpeg
640-49.jpeg
卧室以绿色点缀
让整个空间都充满了生机盎然的氛围
640-50.jpeg
640-51.jpeg
从一层至二层
设计师利用这种流通性将每个功能区串联在一起
整个空间也变得十分的融洽
640-52.jpeg
在保证老宅原始构架的基础上
设计师以灵活的规划
让这间老宅重新焕发出独特的魅力
640-53.jpeg640-25.jpeg



XML网站地图|HTML网站地图|TXT网站地图